Family Planning

Auction Location: Online.

Online Auction
Friday 26th November at 7pm (if not sold prior).

Offered to the market for the first time in over 45 years, this traditional solid full brick spacious family home offers functionality and flexibility. From the uninterrupted valley views from the front veranda to the fully fenced private backyard, every inch of this light filled home has something to offer. Street corner position may offer you the potential of a new Granny Flat.

Features:
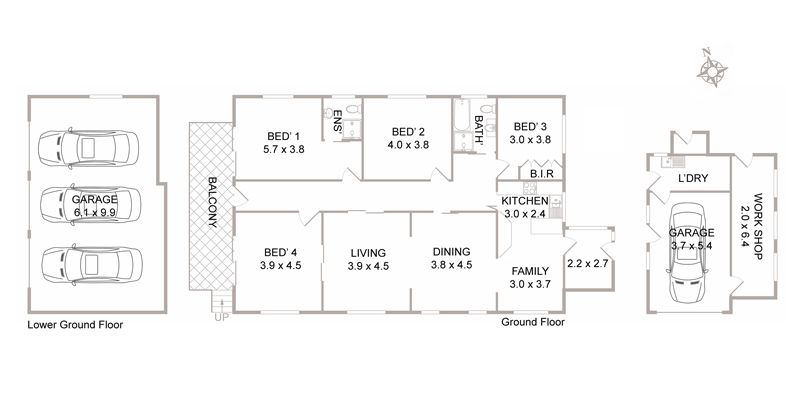
* Expansive light filled living, dining and family rooms offers you a connection of spaces. If you don't need one of the bedrooms, you can extend this huge space to make a pleasant work from home situation. High ceilings
* Fully renovated kitchen features stone bench tops and plenty of cupboard space
* Three king sized bedrooms and one double bedroom. All with ceiling fans
* Master bedroom and 2nd bedroom opens onto the undercover front veranda
* Master bedroom features a modern ensuite with waterfall shower head
* Polished timber floors in living areas. Remove the carpets in the other rooms and you could add this feature throughout
* 3 car lock up garage under house
* Stand-alone garage with its own driveway for a 4th car is at the rear of the house. Water and power supplied. Alternatively, a workshop, studio or office. Knock it down and build a new granny flat (subject to Council).
* Fully fenced backyard with established vegetable gardens
* Installation of solar panels
* Hornsby North Primary School Catchment. Walk Hornsby station, shops and cafes. Close to Hornsby Aquatic and Leisure centre and Tafe
*You can add value to this property with a coat of paint and new carpets. Endless possibilities
* Land size – 672 SQM (approx)
* You'll love it here!

Available to inspect at open home or private appointment. For more information or books an inspection call Rachel on 0416 218 050.

Disclaimer: While every care has been taken in producing the above information, no warranty is given or implied to the accuracy. Prospective purchasers are requested to take such action as necessary to satisfy themselves in this respect.

Contact

Rebecca (Bec) Reid

Rebecca (Bec) Reid

02 9476 0000

648.5872@leaddrop.rexsoftware.com

0410 541 866

Email Agent

  • Anti-Spam Image
  • Submit
  • 4
  • 2
  • 4
SOLD

Email to a Friend

  • Solve this math problem: 6 - 5

Property information

  • Street Address 21 Silvia Street
  • Suburb Hornsby
  • Property Type House
  • Land Size 672 m2
Back to previous page