SERENE SETTING

Set on a peaceful 920 sqm (approx.) near level block of land. Your backdrop is the Berowra Valley National Park. This versatile home offers a flexible floorplan and features a self-contained flat or teenage retreat or large office space. Investors and growing families will not want to miss out on inspecting this property.

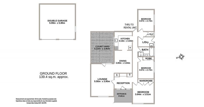
Main home:
• Separate lounge and dining with easy flow to spacious kitchen
• Timber floorboards in kitchen, living areas and 3rd bedroom
• 3 good-sized bedrooms with built ins in 2
• Bathroom features separate bath and shower
• Separate WC
• North facing courtyard off lounge room

Self-contained flat:
• Recently refreshed with new carpet and paint upstairs
• L shaped lounge / dining takes advantage of the natural sunlight
• Modern kitchenette with laundry facilities and timber floors
• 2 bedrooms take advantage of the tree top views
• Master bedroom with full-length walk-in robe and access to 2-way bathroom
• Huge under- cover outdoor entertaining deck. The perfect place to relax and enjoy the tranquil setting

Outside:
• Double lock up garage…room for storage
• Private grassed backyard ideal for children and pets
• Additional off-street parking space at front of house
• Enjoy local bush walks and quick access to Crosslands Reserve and National Park
• A short drive takes you to centre of Hornsby's vibrant shopping and entertainment precincts, aquatic centre and medical facilities.
• Bus stops nearby. Easy access to local school.

You'll love it here!

Disclaimer: While every care has been taken in producing the above information, no warranty is given or implied to the accuracy. Prospective purchasers are requested to take such action as necessary to satisfy themselves in this respect.

Contact

Rebecca (Bec) Reid

Rebecca (Bec) Reid

02 9476 0000

648.5872@leaddrop.rexsoftware.com

0410 541 866

John Pye

John Pye

02 8914 1710

john@johnpye.com.au

0414 914 268

Email Agent

  • Anti-Spam Image
  • Submit
  • 5
  • 2
  • 2
SOLD

Email to a Friend

  • Solve this math problem: 5 + 6

Property information

  • Street Address 402 Somerville Road
  • Suburb Hornsby Heights
  • Property Type House
Back to previous page