R3 MEDIUM DENSITY ZONING

EXPRESSIONS of INTEREST
Close 5PM Monday.
Last chance to view: Monday 2PM.

Development site, 689 SQM with frontage of 15.24 M. Potential for Duplex or Manor House plus more. High side of street ensures easy drainage in your development. Alternatively, excellent long-term investment with great tenants.

Top position opposite parklands. Bus stop near door, close to local Public School. Short drive to Parramatta CBD.

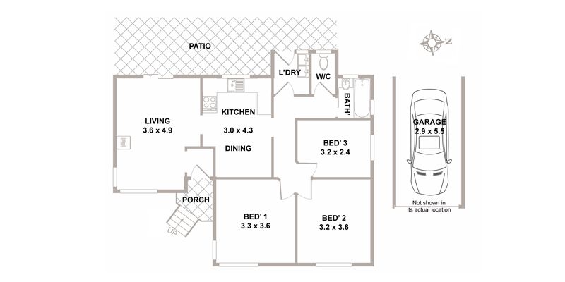
Traditional '50's cottage with spacious rooms is currently let at $345 PW till November. Features include:-

- Polished solid timber flooring
- Living/dining room features a slow combustion fireplace plus air conditioning for year-round comfort
- Three bedrooms with two featuring wardrobes
- Bathroom has a separate toilet
- Garage has some space for storage
- Backyard is large and level enough for a cricket match, fully enclosed, ideal for children. Easy maintenance.

Please note Parking: In Wirralee Street (approx. 4-minute walk) or opposite in Finlayson Street.

You'll love it here!

Disclaimer: While every care has been taken in producing the above information, no warranty is given or implied to the accuracy. Prospective purchasers are requested to take such action as necessary to satisfy themselves in this respect.

Contact

Rebecca (Bec) Reid

Rebecca (Bec) Reid

02 9476 0000

648.5872@leaddrop.rexsoftware.com

0410 541 866

John Pye

John Pye

02 8914 1710

john@johnpye.com.au

0414 914 268

Email Agent

  • Anti-Spam Image
  • Submit
  • 3
  • 1
  • 1
SOLD

Email to a Friend

  • Solve this math problem: 16 - 10

Property information

  • Street Address 138 Centenary Road
  • Suburb South Wentworthville
  • Property Type House
  • Land Size 689 m2
Back to previous page